Complejo Terapueútico de Marchena
C/ Sevilla. Marchena. 2019-22
Promotores: Ayuntamiento de Marchena
Constructora: Rascon S.L.
Arquitectos: Giudecca Arquitectos + d2 arquitectos
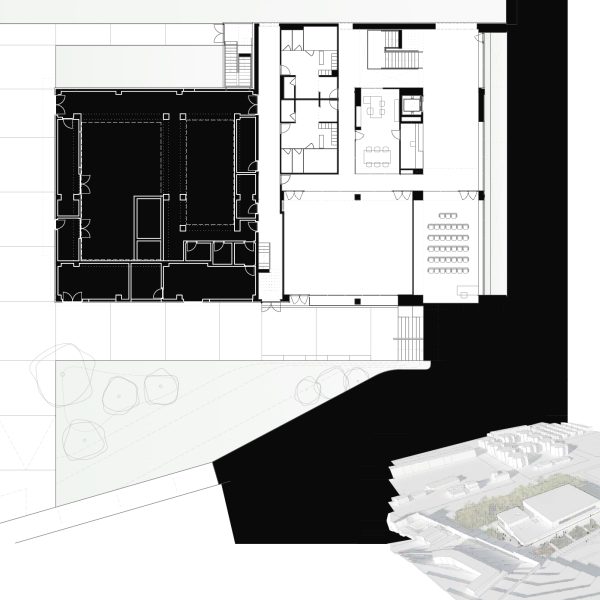
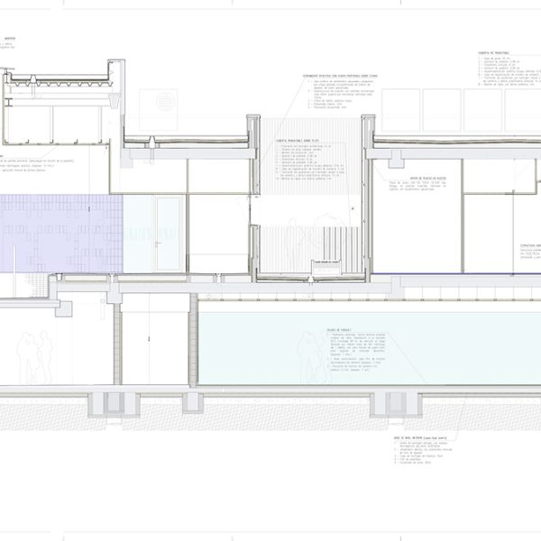
La propuesta del complejo deportivo se emplaza en una zona de ladera que desciende hacia el oeste, vacío limítrofe que cuenta en la actualidad con amplios espacios libres como el parque Pablo Iglesias o la explanada destinada a la colocación efímera de la Feria del municipio. El núcleo urbano, ubicado sobre algunas prominencias topográficas, queda desconectado de esta zona del municipio debido al gran desnivel, y al paso natural de aguas subterráneas que ha sido resuelto a priori mediante terraplenes y la concatenación de distintas plataformas de gran extensión, que van salvando el desnivel acogiendo los diferentes usos que se dan en el entorno, hasta llegar finalmente a su cota más baja (parque Pablo Iglesias). Dentro de una estrategia de mayor alcance, la primera fase ha desarrollado la ejecución del Complejo Terapéutico situado a la cabecera de la pista de albero que con anterioridad había sido destinada a casetas de Feria. El equipamiento pretende actuar como grapa que recoge en sí mismo el desnivel natural del terreno, que presenta un nivel superior a la cota del acceso principal por la nueva plaza desde el núcleo urbano, que recoge a cota la sala de piscinas, y salas auxiliares de actividades , junto con el vestíbulo y vestuarios, y el nivel inferior que recoge unas salas que tienen acceso interior, pero también independiente desde el exterior, que cuenta también con vestuarios y zona de administración en dicha planta. El edificio del complejo terapéutico ejecutado ha seguido el proyecto básico original a excepción principalmente de la inclusión de un patio inglés en su fachada este bajo la marquesina, con el fin de dotar de luz natural el vestíbulo y las salas a este de planta baja. La sala de piscinas es el espacio más representativo y se evidencia al exterior como el volumen de más altura, recibiendo luz natural de un gran hueco al sur, protegido con lamas horizontales, desde el hueco horizontal que recorre los lados norte y oeste de la sala, así como desde el lucernario situado sobre una de las piscinas. Esta estrategia refuerza la importante conexión visual que se pretende mantener en todo momento con el exterior desde el interior de la sala y que consigue privacidad gracias a que se mantiene en primera planta. La sala cuenta con dos vasos de piscina y tanto desde ellos como desde las playas se puede tener conciencia del exterior en todo momento.
 
								










































































